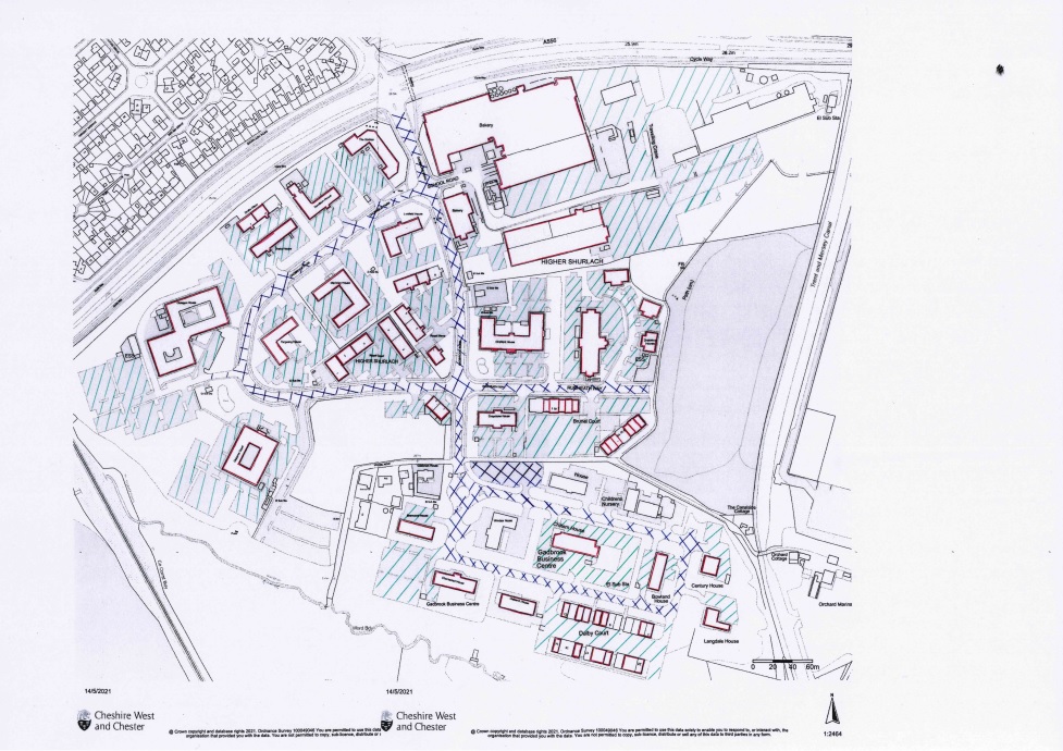
Injunction Proceedings against Persons Unknown in respect of Gadbrook Park
Thu, 6 Jan 2022
The businesses of Gadbrook Park have commenced Injunction Proceedings to restrain Persons Unknown from committing Trespass upon Gadbrook Park.
Please click on the full proceedings here:
Witness Statement of Hugh Sheilds
Witness Statement of James Coleman
Witness Statement of Michael Frank Roberts
If you believe that these proceedings are applicable to you, we ask that you contact our nominated Solicitors, Butcher & Barlow LLP, by no later than 14 January 2022:
Butcher and Barlow LLP
3 Royal Mews
Gadbrook Park
Northwich
CW9 7UD
Or by email to: WAllen@butcher-barlow.co.uk